Description of the structure of the cabinet:
The switchgear consists of two parts: the fixed cabinet body and the extractable parts (that is, the handcart). The shell of the cabinet is assembled with aluminum zinc steel plate. The protective level of the shell of the switchgear is IP4X, and the protective grade IP2Xwhen the door of the breaker chamber is opened, the switchgear has the functions of overhead access line, cable access line, left and right contact, The switchgear of each scheme can be arranged according to the purpose to form a distribution device capable of completing the design function. Since the installation and commissioning of switchgear can be carried out in a positive way, the switchgear can be installed against the wall.
The province covers an area and reduces investment.
Cabinet:
The cabinet shell of the switchgear is manufactured by CNC machine tool and fastened by multi-fold bending process. Therefore, the assembled switchgear can keep the uniformity of dimensions. Aluminum-zinc steel plate has strong corrosion resistance and oxidation resistance, and has higher mechanical strength than the same steel plate. The switchgear is divided into hand compartment, bus room, cable room, relay instrument room,
The housing of each unit is independently grounded. The doors of the switchgear are all sprayed by static electricity so that the surface of the switchgear is impact-resistant, corrosion-resistant and anticorrosive.
Beautiful appearance (color can be determined by the user) and other advantages.
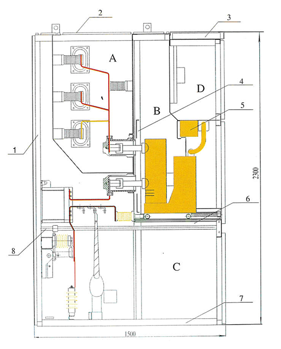
A, busbar room
B, circuit breaker room
C, cable room
D, low voltage room
Can
1. Shell
2, pressure relief device
3, control small bus
4. Middle diaphragm (valve)
5, secondary interlocking
6. Pluggable horizontal partition
7, bottom plate
8. Earthing switch operation mechanism

Address: In the Jinyi New Energy Industrial Park on the east side of Huanzhen Road, Jiaze Town, Wujin District, Changzhou City
Copyright:Jiangsu Baihong Intelligent Electrical Co., Ltd 蘇ICP備18016683號-1 Powered by zzw